Дома под ключ в Великом Новгороде
Отзывы из Яндекс Карт
4.9
115 отзывов
Дополнительные услуги 88%
2 154 оценок
Комплектации 89%
1 535 оценок
Планировки 90%
2 484 оценок
Проекты 93%
2 231 оценок
С
Зиновий О.05/02/2026 г.
Заказывал проект с эркером. В живую смотрится даже лучше, чем на картинке. Но возни с отделкой этой части было больше, пришлось искать спецов по окнам нестандартной формы.
С
Лев Лазарев03/19/2026 г.
Сроки строительства под ключ заняли около четырёх месяцев. Не быстро, но и не долго. Зато не пришлось никуда бегать, всё сделали своими силами, от фундамента до покраски.
С
Веда04/04/2025 г.
Мне очень импонировало, что сотрудники компании не просто исполнители, а настоящие энтузиасты своего дела, которые искренне болеют за проект и стараются сделать его лучше, постоянно советуясь с нами и учитывая каждую мелочь.
Отзывы из Google Карт
4.8
69 отзывов
Дополнительные услуги 88%
2 154 оценок
Комплектации 89%
1 535 оценок
Планировки 90%
2 484 оценок
Проекты 93%
2 231 оценок
С
Вася Шаров04/26/2026 г.
Заказывал у них домик 4х10 на сваях под маленькую мастерскую, сделали за 10 дней. Качество сварки на сваях хромает, сам зачистил и подкрасил. В остальном сборка бруса ровная. Для хознужд пойдет.
С
Эльза Вешнякова01/31/2025 г.
Дом построен на совесть — прошлой зимой были сильные морозы, но мы не заметили ни одного сквозняка, везде тепло и уютно, спасибо за качественное утепление и сборку.
Отзывы из 2гис
4.9
48 отзывов
Дополнительные услуги 88%
2 154 оценок
Комплектации 89%
1 535 оценок
Планировки 90%
2 484 оценок
Проекты 93%
2 231 оценок
С
Нинель Ч.02/09/2026 г.
Могла бы и сама нанять шабашников, но решила не рисковать. И не зря — дом 8х14 с двумя входами и печкой построили за 40 дней, аккуратно. Единственное, немного запахло от пропитки, но выветрилось.
С
Григорий01/30/2026 г.
БрусДома строили дом моему брату, я посмотрел и тоже заказал у них одноэтажный 8х11 с двумя входами. Бригада та же самая, работали споро. Несколько раз приезжали позже — по мелочи помогали, за что уважаю.
С
Даниэла Кулакова07/10/2025 г.
Я в полном восторге от качества сборки и скорости возведения нашей каркасной бани! Обратилась в компанию по рекомендации подруги и ни разу не пожалела. Менеджер Анна помогла подобрать проект, идеально подходящий под размеры участка, а строители приехали точно в оговоренный день и приступили к работе без задержек. Уже через несколько недель я парилась в собственной бане, наслаждаясь идеальной геометрией стен и приятным ароматом древесины.


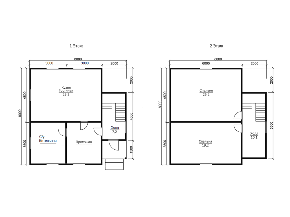
Проект №36 Дом из бруса 8х8

брус камерной сушки
Создайте свой план для этого проекта
и отправьте его нам на расчет в один клик.
Под ключ (с отделкой) 8х8 Профилированный 140х140 мм 2590100 Заказать
Под ключ (с отделкой) 8х8 Профилированный 190х140 мм 2840100 Заказать
Под усадку (без отделки) 8х8 Cруб дома 140х140 мм 1650100 Заказать
Под усадку (без отделки) 8х8 Cруб дома 190х140 мм 1880100 Заказать


Комплектация

Площадь застройки: 64 м2
Длина: 8 м
Ширина: 8 м
Общая площадь: 106.61 м2
Под ключ (с отделкой) Под усадку (без отделки)
Фундамент Свайно-винтовой или ж/б сваи (рассчитываются отдельно).
Гидроизоляция фундамента Рубероид в два слоя.
Основание (обвязка) Из обрезного бруса (100х150 мм. 150х150 мм. 150х200 мм. согласно выбранному сечению бруса). Обработка антисептиком.
Количество рядов основания 2 2
Цокольное перекрытие Обрезной брус камерной сушки 100х150/50х200 мм. с шагом 600 мм. Обработка антисептиком. Обрезной брус естественной влажности 100х150/50х200 мм. с шагом 600 мм. Обработка антисептиком.
Пол черновой Обрезная доска камерной сушки 20х100 мм. Обрезная доска естественной влажности 20х100 мм.
Внешние стены Профилированный брус камерной сушки, сечением 90х140/140х140/190х140 мм. по выбранной комплектации. Два вида профиля: 
1. С двух сторон, прямой со снятой фаской. 2. Снаружи под «блок- хаус», внутри прямой.
Высота сруба: Сруб одноэтажный- 18 венцов
Сруб с мансардой- 18 венцов
Сруб в 1,5 этажа- 18 венцов, далее каркас с внешней отделкой имитацией бруса.
Сруб в 2 этажа- 37 венцов
Профилированный брус естественной влажности, сечением 90х140/140х140/190х140 мм. по выбранной комплектации. Два вида профиля: 
1. С двух сторон, прямой со снятой фаской. 2. Снаружи под «блок- хаус», внутри прямой.
Высота сруба: Сруб одноэтажный- 18 венцов
Сруб с мансардой- 18 венцов
Сруб в 1,5 этажа- 18 венцов, далее каркас с внешней отделкой имитацией бруса.
Сруб в 2 этажа- 37 венцов
Межвенцовый утеплитель Джут (льноджутовое полотно). Джут (льноджутовое полотно).
Перегородки 1-го этажа Профилированный брус камерной сушки, сечением 90х140 мм. Профилированный брус естественной влажности, сечением 90х140 мм.
Перегородки 2-го этажа Каркасные: доска камерной сушки 40х100 мм, обшитые евровагонкой хвойных пород, камерной сушки, толщиной 12,5 мм. сорт «АВ» (дома с мансардой и в 1,5 этажа). Брусовые: профилированный брус камерной сушки, сечением 90х140 мм. (дома двухэтажные). Каркасные: доска естественной влажности 40х100 мм. (дома с мансардой и в 1,5 этажа). Брусовые: профилированный брус естественной влажности, сечением 90х140 мм. (дома двухэтажные).
Сборка сруба Берёзовый нагель. Берёзовый нагель.
Соединение углов сруба «Тёплый угол» (коренной шип). «Тёплый угол» (коренной шип).
Высота от пола до потолка Сруб одноэтажный: 2,4 м. (18 венцов) Сруб с мансардой: 1-ый этаж- 2,4 м. (18 венцов)
2-ой этаж (мансарда)- 2,3 м.
Сруб в полтора и два этажа:
1-ый этаж 2,4 м ±4 см. (18 венцов)
2-ой этаж 2,4 м ±4 см. каркасные аттиковые стены (боковые) высотой 1,5 м. в полутораэтажном доме
2,4 м ±4 см (поднят брусом на 18 венцов) в двухэтажном доме.
Сруб одноэтажный: 2,5 м. (18 венцов) Сруб с мансардой: 1-ый этаж- 2,5 м. (18 венцов)
2-ой этаж (мансарда)- 2,4 м.
Сруб в полтора и два этажа:
1-ый этаж 2,5 м ±4 см. (18 венцов)
2-ой этаж 2,5 м ±4 см. каркасные аттиковые стены (боковые) высотой 1,5 м. в полутораэтажном доме
2,5 м ±4 см (поднят брусом на 18 венцов) в двухэтажном доме.
Утепление (пол, потолок, мансарда) Минеральная вата Knauf 150 мм. Отсутствует.
Пароизоляция (пол, потолок, мансарда) Ондутис R70. Отсутствует.
Пол чистовой Шпунтованная доска камерной сушки толщиной 36 мм. сорт АВ. по рейке 20х40 мм. либо шпунтованная ДСП 16 мм. по разряженной обрешётке из обрезной доски камерной сушки 20х100 мм. Отсутствует.
Потолки Евровагонка камерной сушки толщиной 12,5 мм. сорт АВ. Отсутствует.
Окна Деревянные, двойного остекления. Отсутствуют.
Двери Входная- металлическая, утеплённая (Россия). Межкомнатные- филёнчатые. Отсутствуют.
Наличники на окна и двери Наличник деревянный, строганый, камерной сушки 70-90 мм. Отсутствует.
Шиповка оконных и дверных проёмов (ройки) Да. Отсутствует.
Лестница (при наличии второго этажа) Деревянная, одно или двухмаршевая. Перила- заводские резные, балясины- заводские точеные, устанавливаются стартовые точёные столбы. Ступени 40х200 мм. Тетива лестницы- 90х140 мм. Отсутствует.
Крыша Двускатная, ломаная или вальмовая в соответствии с проектом. Двускатная, ломаная или вальмовая в соответствии с проектом.
Стропильная система Выполнена из обрезной доски камерной сушки 40х150 мм. Шаг установки стропильных ног 600 мм. Выполнена из обрезной доски естественной влажности 40х150 мм. Шаг установки стропильных ног 600 мм.
Обрешётка Выполняется из обрезной доски камерной сушки толщиной 20-22 мм. Шаг крепления обрешетки 300 мм. Контробрешётка выполняется из бруска камерной сушки 40х50 мм. Крепится по стропильным ногам (вентиляционный зазор). Выполняется из обрезной доски естественной влажности толщиной 20-22 мм. Шаг крепления обрешетки 300 мм. Контробрешётка выполняется из бруска естественной влажности 40х50 мм. Крепится по стропильным ногам (вентиляционный зазор).
Подкровельная мембрана Ондутис А100 Ондутис А100
Кровельное покрытие (на выбор) Ондулин, Черепица Ондулин. Ондулин, Черепица Ондулин.
Фронтоны (при наличии) Каркас из обрезной доски камерной сушки 40х150 мм. Обшиваются вагонкой камерной сушки толщиной 16 мм. сорт АВ по контррейке 20х40 мм. (вентиляционный зазор). Влаго-ветрозащита Ондутис А100. Монтаж вентиляционных решёток. Каркас из обрезной доски естественной влажности 40х150 мм. Обшиваются вагонкой камерной сушки толщиной 16 мм. сорт АВ по контррейке 20х40 мм. (вентиляционный зазор). Влаго-ветрозащита Ондутис А100. Монтаж вентиляционных решёток.
Свесы крыши Ширина 400 мм. Подшиваются вагонкой камерной сушки, сорт АВ. Ширина 400 мм. Подшиваются вагонкой камерной сушки, сорт АВ.
Терраса/балкон (при наличии) Устанавливаются опорные столбы из строганного бруса камерной сушки 140х140 мм. с компенсационными болтами под усадку. Устанавливаются опорные столбы из строганного бруса естественной влажности 140х140 мм. с компенсационными болтами под усадку.
Отделка потолка террасы/балкона Евровагонка камерной сушки толщиной 12,5 мм. сорт АВ. Отсутствует.
Пол террасы/балкона Шпунтованная доска камерной сушки толщиной 36 мм. сорт АВ. Отсутствует.
Ограждение террасы/балкона Перила- строганая доска. Балясины- точеные, фигурные. Либо ограждение в скандинавском стиле. Устанавливаются ступени у входа. Отсутствует.
Допуск на геометрические параметры сруба Составляет +/- 50 мм по длине с каждой стороны. Составляет +/- 50 мм по длине с каждой стороны.
Допускается стыковка бруса, вагонки и половой доски По всему периметру стен дома (если ширина и длина дома более 6,0 метров). Вагонки и доски пола в каждой отдельной комнате. По всему периметру стен дома (если ширина и длина дома более 6,0 метров).
Допуски по брусу, доске +/- 5 мм. +/- 5 мм.
В стоимость включена Доставка комплекта материала в радиусе 500 км. от г. Пестова Новгородской области и сборка дома на вашем участке. Доставка комплекта материала в радиусе 500 км. от г. Пестова Новгородской области и сборка дома на вашем участке.
Гарантия 5 лет. 2 года.
Бытовка строительная 2,0х3,0 м. каркасно-щитовая. Стоимость 23000 руб. Остаётся на участке Заказчика. Стоимость 23000 руб. Остаётся на участке Заказчика.
Туалет 1,0х1,0 м. каркасно-щитовой. Стоимость 12000 руб. Остаётся на участке Заказчика. Стоимость 12000 руб. Остаётся на участке Заказчика.
Генератор Стоимость аренды на весь срок строительства 10000 руб. ГСМ за счёт Заказчика. Стоимость аренды на весь срок строительства 10000 руб. ГСМ за счёт Заказчика.

Сооружение дома производится в нескольких видах: под усадку, когда дом будет отстаиваться определенное время и сразу под ключ.

Зимой мастера рекомендуют строить дома из зимнего леса, в летний период - из бруса камерной сушки.

Оптимальными для сада или дачи считают малобюджетные домики на винтовых сваях, у нас имеются одноэтажные и полуторатажные варианты домов.

Для постоянного проживания, советуем теплые двухэтажные и одноэтажные коттеджи и дома на плитном и ленточном фундаменте.

Мы можем предложить несколько видов профбруса: 190х140 мм и 140х140 мм. Постройки из вертикального бруса строим с использованием бруса 140х190 мм.

Дополнительные услуги


Проект полутораэтажного дачного дома 36 сочетает в себе европейские архитектурные элементы и мотивы русского деревянного зодчества. В дизайне дома применены оригинальные решения: геометрия линий, цветовой контраст между кровлей и деревянными элементами.

Преимущество двускатной крыши из ондулина выбранной расцветки (коричневой, зеленой или красной) заключается в совмещении практической целесообразности и эстетической привлекательности.

Общая площадь дома с составляет 106.61 кв.м., размеры дома – 8х8 м..

Качественная обработка древесных материалов исключает усадку и деформацию конструкции строения. Двойные окна обеспечивают комфортное круглогодичное проживание в доме.

Планировка дачного дома выполнена с максимальным задействованием внутреннего пространства. Равномерное освещение комнат обусловлено продуманным расположением окон. Использованный в строительстве экологически чистый, натуральный материал – профилированный брус – придает дому респектабельный вид.

Компания «Дача из бруса» предлагает готовые проекты и строительство домов из бруса под ключ в Великом Новгороде. По желанию заказчика возможна разработка индивидуального проекта.


Заказать или задать вопрос



Заказать или задать вопрос

Заказать звонок