Дома под ключ в Великом Новгороде
Отзывы из Яндекс Карт
4.9
101 отзывов
Дополнительные услуги 88%
2 154 оценок
Комплектации 89%
1 535 оценок
Планировки 90%
2 484 оценок
Проекты 93%
2 231 оценок
С
Спартак Гордеев04/29/2026 г.
Заказал баню 4х4 с маленьким бассейном и печкой-каменкой. В процессе выяснилось, что выбранный проект не подходит под мой фундамент — архитектор переделал чертежи за два дня без доплат. Молодцы, что не кинули.
С
Христина Калугина06/18/2025 г.
Выстроили нам баню под ключ в рекордные сроки, при этом качество на высоте — ни единого сквозняка, полы теплые, а пар держится просто божественно.
Отзывы из Google Карт
4.8
61 отзывов
Дополнительные услуги 88%
2 154 оценок
Комплектации 89%
1 535 оценок
Планировки 90%
2 484 оценок
Проекты 93%
2 231 оценок
С
Анжела05/03/2026 г.
Первый раз строимся, ничего не понимали. В БрусДома помогли с выбором площади, остановились на 80 м2 одноэтажном с панорамным остеклением. В процессе поняли что хотели бы второй свет, добавили, увеличили бюджет, но дом получился сказка. К монтажу окон вопросы есть, задувает немного.
С
Герда Ермолаева02/24/2026 г.
Каркасник 40 м2 с террасой заказывали как гостевой домик. Сделали качественно, стены ровные, утеплитель не слежался. Но при сборке повредили сайдинг с одной стороны — царапина заметная. Извинились, обещали заменить, но жду уже месяц. Надеюсь, приедут.
С
Прасковья05/30/2025 г.
Моя новая баня из профилированного бруса от компании «Брус дома» — это настоящая мечта, которая стала реальностью! Очень довольна качеством сборки и внимательным отношением к деталям на всех этапах строительства. Теперь у меня есть собственный уголок для релаксации, пахнущий древесиной и уютом.
Отзывы из 2гис
4.9
48 отзывов
Дополнительные услуги 88%
2 154 оценок
Комплектации 89%
1 535 оценок
Планировки 90%
2 484 оценок
Проекты 93%
2 231 оценок
С
Володя Чесноков03/25/2026 г.
Сдали баню 5,5х7,5 с бассейном под новый год. Я пришёл принимать — а в предбаннике плинтус не прибит. Позвал прораба, при нем прибили. Ну мелочь, а настроение подпортили.
С
Болеслав Козин01/24/2026 г.
По совету жены заказал дом 8х9 с двумя входами и навесом для машины. Строили с мая по август, сдали под ключ. Не понравилось, что менеджер в офисе обещал одно, а бригада делала другое — пришлось перезванивать, уточнять. В итоге сделали как надо, но осадочек остался.
С
Кир Карасёв03/31/2025 г.
Баня из бруса — это моя гордость, и за это спасибо компании Брус дома: подобрали лес без сучков, собрали сруб без щелей, а теперь еще и соседи завидуют, просят контакты.


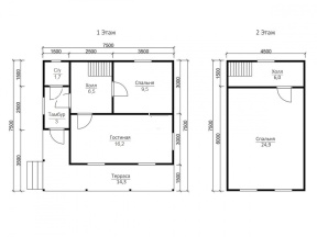
Проект №25 Дом с террасой 7,5х7,5

брус камерной сушки
Создайте свой план для этого проекта
и отправьте его нам на расчет в один клик.
Под ключ (с отделкой) 7,5х7,5 Профилированный 140х140 мм 1900100 Заказать
Под ключ (с отделкой) 7,5х7,5 Профилированный 190х140 мм 2150100 Заказать
Под усадку (без отделки) 7,5х7,5 Cруб дома 140х140 мм 1230100 Заказать
Под усадку (без отделки) 7,5х7,5 Cруб дома 190х140 мм 1390100 Заказать


Комплектация

Площадь застройки: 48 м2
Длина: 7.5 м
Ширина: 7 м
Общая площадь: 70.13 м2
Под ключ (с отделкой) Под усадку (без отделки)
Фундамент Свайно-винтовой или ж/б сваи (рассчитываются отдельно).
Гидроизоляция фундамента Рубероид в два слоя.
Основание (обвязка) Из обрезного бруса (100х150 мм. 150х150 мм. 150х200 мм. согласно выбранному сечению бруса). Обработка антисептиком.
Количество рядов основания 2 2
Цокольное перекрытие Обрезной брус камерной сушки 100х150/50х200 мм. с шагом 600 мм. Обработка антисептиком. Обрезной брус естественной влажности 100х150/50х200 мм. с шагом 600 мм. Обработка антисептиком.
Пол черновой Обрезная доска камерной сушки 20х100 мм. Обрезная доска естественной влажности 20х100 мм.
Внешние стены Профилированный брус камерной сушки, сечением 90х140/140х140/190х140 мм. по выбранной комплектации. Два вида профиля: 
1. С двух сторон, прямой со снятой фаской. 2. Снаружи под «блок- хаус», внутри прямой.
Высота сруба: Сруб одноэтажный- 18 венцов
Сруб с мансардой- 18 венцов
Сруб в 1,5 этажа- 18 венцов, далее каркас с внешней отделкой имитацией бруса.
Сруб в 2 этажа- 37 венцов
Профилированный брус естественной влажности, сечением 90х140/140х140/190х140 мм. по выбранной комплектации. Два вида профиля: 
1. С двух сторон, прямой со снятой фаской. 2. Снаружи под «блок- хаус», внутри прямой.
Высота сруба: Сруб одноэтажный- 18 венцов
Сруб с мансардой- 18 венцов
Сруб в 1,5 этажа- 18 венцов, далее каркас с внешней отделкой имитацией бруса.
Сруб в 2 этажа- 37 венцов
Межвенцовый утеплитель Джут (льноджутовое полотно). Джут (льноджутовое полотно).
Перегородки 1-го этажа Профилированный брус камерной сушки, сечением 90х140 мм. Профилированный брус естественной влажности, сечением 90х140 мм.
Перегородки 2-го этажа Каркасные: доска камерной сушки 40х100 мм, обшитые евровагонкой хвойных пород, камерной сушки, толщиной 12,5 мм. сорт «АВ» (дома с мансардой и в 1,5 этажа). Брусовые: профилированный брус камерной сушки, сечением 90х140 мм. (дома двухэтажные). Каркасные: доска естественной влажности 40х100 мм. (дома с мансардой и в 1,5 этажа). Брусовые: профилированный брус естественной влажности, сечением 90х140 мм. (дома двухэтажные).
Сборка сруба Берёзовый нагель. Берёзовый нагель.
Соединение углов сруба «Тёплый угол» (коренной шип). «Тёплый угол» (коренной шип).
Высота от пола до потолка Сруб одноэтажный: 2,4 м. (18 венцов) Сруб с мансардой: 1-ый этаж- 2,4 м. (18 венцов)
2-ой этаж (мансарда)- 2,3 м.
Сруб в полтора и два этажа:
1-ый этаж 2,4 м ±4 см. (18 венцов)
2-ой этаж 2,4 м ±4 см. каркасные аттиковые стены (боковые) высотой 1,5 м. в полутораэтажном доме
2,4 м ±4 см (поднят брусом на 18 венцов) в двухэтажном доме.
Сруб одноэтажный: 2,5 м. (18 венцов) Сруб с мансардой: 1-ый этаж- 2,5 м. (18 венцов)
2-ой этаж (мансарда)- 2,4 м.
Сруб в полтора и два этажа:
1-ый этаж 2,5 м ±4 см. (18 венцов)
2-ой этаж 2,5 м ±4 см. каркасные аттиковые стены (боковые) высотой 1,5 м. в полутораэтажном доме
2,5 м ±4 см (поднят брусом на 18 венцов) в двухэтажном доме.
Утепление (пол, потолок, мансарда) Минеральная вата Knauf 150 мм. Отсутствует.
Пароизоляция (пол, потолок, мансарда) Ондутис R70. Отсутствует.
Пол чистовой Шпунтованная доска камерной сушки толщиной 36 мм. сорт АВ. по рейке 20х40 мм. либо шпунтованная ДСП 16 мм. по разряженной обрешётке из обрезной доски камерной сушки 20х100 мм. Отсутствует.
Потолки Евровагонка камерной сушки толщиной 12,5 мм. сорт АВ. Отсутствует.
Окна Деревянные, двойного остекления. Отсутствуют.
Двери Входная- металлическая, утеплённая (Россия). Межкомнатные- филёнчатые. Отсутствуют.
Наличники на окна и двери Наличник деревянный, строганый, камерной сушки 70-90 мм. Отсутствует.
Шиповка оконных и дверных проёмов (ройки) Да. Отсутствует.
Лестница (при наличии второго этажа) Деревянная, одно или двухмаршевая. Перила- заводские резные, балясины- заводские точеные, устанавливаются стартовые точёные столбы. Ступени 40х200 мм. Тетива лестницы- 90х140 мм. Отсутствует.
Крыша Двускатная, ломаная или вальмовая в соответствии с проектом. Двускатная, ломаная или вальмовая в соответствии с проектом.
Стропильная система Выполнена из обрезной доски камерной сушки 40х150 мм. Шаг установки стропильных ног 600 мм. Выполнена из обрезной доски естественной влажности 40х150 мм. Шаг установки стропильных ног 600 мм.
Обрешётка Выполняется из обрезной доски камерной сушки толщиной 20-22 мм. Шаг крепления обрешетки 300 мм. Контробрешётка выполняется из бруска камерной сушки 40х50 мм. Крепится по стропильным ногам (вентиляционный зазор). Выполняется из обрезной доски естественной влажности толщиной 20-22 мм. Шаг крепления обрешетки 300 мм. Контробрешётка выполняется из бруска естественной влажности 40х50 мм. Крепится по стропильным ногам (вентиляционный зазор).
Подкровельная мембрана Ондутис А100 Ондутис А100
Кровельное покрытие (на выбор) Ондулин, Черепица Ондулин. Ондулин, Черепица Ондулин.
Фронтоны (при наличии) Каркас из обрезной доски камерной сушки 40х150 мм. Обшиваются вагонкой камерной сушки толщиной 16 мм. сорт АВ по контррейке 20х40 мм. (вентиляционный зазор). Влаго-ветрозащита Ондутис А100. Монтаж вентиляционных решёток. Каркас из обрезной доски естественной влажности 40х150 мм. Обшиваются вагонкой камерной сушки толщиной 16 мм. сорт АВ по контррейке 20х40 мм. (вентиляционный зазор). Влаго-ветрозащита Ондутис А100. Монтаж вентиляционных решёток.
Свесы крыши Ширина 400 мм. Подшиваются вагонкой камерной сушки, сорт АВ. Ширина 400 мм. Подшиваются вагонкой камерной сушки, сорт АВ.
Терраса/балкон (при наличии) Устанавливаются опорные столбы из строганного бруса камерной сушки 140х140 мм. с компенсационными болтами под усадку. Устанавливаются опорные столбы из строганного бруса естественной влажности 140х140 мм. с компенсационными болтами под усадку.
Отделка потолка террасы/балкона Евровагонка камерной сушки толщиной 12,5 мм. сорт АВ. Отсутствует.
Пол террасы/балкона Шпунтованная доска камерной сушки толщиной 36 мм. сорт АВ. Отсутствует.
Ограждение террасы/балкона Перила- строганая доска. Балясины- точеные, фигурные. Либо ограждение в скандинавском стиле. Устанавливаются ступени у входа. Отсутствует.
Допуск на геометрические параметры сруба Составляет +/- 50 мм по длине с каждой стороны. Составляет +/- 50 мм по длине с каждой стороны.
Допускается стыковка бруса, вагонки и половой доски По всему периметру стен дома (если ширина и длина дома более 6,0 метров). Вагонки и доски пола в каждой отдельной комнате. По всему периметру стен дома (если ширина и длина дома более 6,0 метров).
Допуски по брусу, доске +/- 5 мм. +/- 5 мм.
В стоимость включена Доставка комплекта материала в радиусе 500 км. от г. Пестова Новгородской области и сборка дома на вашем участке. Доставка комплекта материала в радиусе 500 км. от г. Пестова Новгородской области и сборка дома на вашем участке.
Гарантия 5 лет. 2 года.
Бытовка строительная 2,0х3,0 м. каркасно-щитовая. Стоимость 23000 руб. Остаётся на участке Заказчика. Стоимость 23000 руб. Остаётся на участке Заказчика.
Туалет 1,0х1,0 м. каркасно-щитовой. Стоимость 12000 руб. Остаётся на участке Заказчика. Стоимость 12000 руб. Остаётся на участке Заказчика.
Генератор Стоимость аренды на весь срок строительства 10000 руб. ГСМ за счёт Заказчика. Стоимость аренды на весь срок строительства 10000 руб. ГСМ за счёт Заказчика.

Сооружение дома производится в нескольких видах: под усадку, когда дом будет отстаиваться определенное время и сразу под ключ.

Зимой мастера рекомендуют строить дома из зимнего леса, в летний период - из бруса камерной сушки.

Оптимальными для сада или дачи считают малобюджетные домики на винтовых сваях, у нас имеются одноэтажные и полуторатажные варианты домов.

Для постоянного проживания, советуем теплые двухэтажные и одноэтажные коттеджи и дома на плитном и ленточном фундаменте.

Мы можем предложить несколько видов профбруса: 190х140 мм и 140х140 мм. Постройки из вертикального бруса строим с использованием бруса 140х190 мм.

Дополнительные услуги


Проект полутораэтажного дачного дома 25 сочетает в себе европейские архитектурные элементы и мотивы русского деревянного зодчества. В дизайне дома применены оригинальные решения: геометрия линий, цветовой контраст между кровлей и деревянными элементами.

Преимущество двускатной крыши из ондулина выбранной расцветки (коричневой, зеленой или красной) заключается в совмещении практической целесообразности и эстетической привлекательности.

Общая площадь дома с маленькой террасой составляет 70.13 кв.м., размеры дома – 7,5х7,5 м..

Качественная обработка древесных материалов исключает усадку и деформацию конструкции строения. Двойные окна обеспечивают комфортное круглогодичное проживание в доме.

Планировка дачного дома выполнена с максимальным задействованием внутреннего пространства. Равномерное освещение комнат обусловлено продуманным расположением окон. Использованный в строительстве экологически чистый, натуральный материал – профилированный брус – придает дому респектабельный вид.

Компания «Дача из бруса» предлагает готовые проекты и строительство домов из бруса под ключ в Великом Новгороде. По желанию заказчика возможна разработка индивидуального проекта.


Заказать или задать вопрос



Заказать или задать вопрос

Заказать звонок