Дома под ключ в Великом Новгороде
Отзывы из Яндекс Карт
4.9
124 отзывов
Дополнительные услуги 88%
2 154 оценок
Комплектации 89%
1 535 оценок
Планировки 90%
2 484 оценок
Проекты 93%
2 231 оценок
С
Веста Мухина05/22/2026 г.
Муж захотел дом с бассейном и сауной. Нашли проект 12х12 у БрусДома. Строили очень долго из-за бассейна — его гидроизоляцию трижды переделывали. Но довольны, всё работает. Только смета выросла почти на полмиллиона.
С
Ванда Панова04/18/2025 г.
Спасибо огромное компании за наш прекрасный каркасный дом. С самого начала менеджер Антон подробно консультировал по всем вопросам. Бригада мастеров своего дела возвела дом буквально за месяц. Теперь у нас самое уютное место на земле.
Отзывы из Google Карт
4.8
75 отзывов
Дополнительные услуги 88%
2 154 оценок
Комплектации 89%
1 535 оценок
Планировки 90%
2 484 оценок
Проекты 93%
2 231 оценок
С
Кай Горбачав04/06/2026 г.
Первый раз строил баню, нервничал, что надурят с материалами. Приехал на их базу — показали пиломатериал, дали потрогать. Баню 4х5 с предбанником и террасой собрали быстро. Правда, через год уголок на полу начал темнеть, но это от воды, наверное.
С
Владислав Кондрашов03/29/2026 г.
Дом 8х10 с сауной и террасой для круглогодичного проживания взял под ключ. Сначала показалось, что дороговато, но потом посчитал, сколько бы я сам на материалах и работе потерял — и успокоился. Сдавали в декабре, мороз был, но всё равно доделали. Единственное — окна на втором этаже потели первые недели, сейчас нормально.
С
Даниил К.01/06/2026 г.
Заказывал дом 8х8 с навесом и двумя входами. Строили быстро, месяц и готово. Только вот входные двери поставили разные, одна открывается внутрь, другая наружу — неудобно, но привык.
С
Анита Навальная02/22/2025 г.
Хочется отметить не только качество строительства, но и потрясающую организацию процесса. Все материалы привозились точно в срок, бригада работала слаженно и без простоев. Мой дом из профилированного бруса собран идеально, будто он всегда стоял на этом месте.
Отзывы из 2гис
4.9
48 отзывов
Дополнительные услуги 88%
2 154 оценок
Комплектации 89%
1 535 оценок
Планировки 90%
2 484 оценок
Проекты 93%
2 231 оценок
С
Антон Рыжков02/17/2026 г.
В прошлом году залил фундамент под дом 6х8, а стройка началась только через месяц. Зато когда приехали монтажники, за две недели сруб поставили и крышу накрыли. К зиме успел.
С
Лика08/20/2025 г.
Выбирала компанию долго и тщательно, и мой выбор пал на Брус дома, о чем ни капли не жалею. Строили нам баню из профилированного бруса, и получилось просто сказочно красиво, пахнет лесом и уютом, все ровно и аккуратно. Огромная благодарность мастеру Виктору и его бригаде за внимательность к деталям и искреннее желание сделать по-настоящему хорошо.


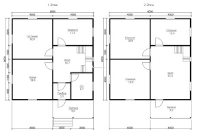
Проект №112 Дом с террасой и балконом 9х9

брус камерной сушки
Создайте свой план для этого проекта
и отправьте его нам на расчет в один клик.
Под ключ (с отделкой) 9х9 Профилированный 140х140 мм 4030100 Заказать
Под ключ (с отделкой) 9х9 Профилированный 190х140 мм 4550100 Заказать
Под усадку (без отделки) 9х9 Cруб дома 140х140 мм 2720100 Заказать
Под усадку (без отделки) 9х9 Cруб дома 190х140 мм 3320100 Заказать


Комплектация

Площадь застройки: 90 м2
Длина: 9 м
Ширина: 9 м
Общая площадь: 150 м2
Под ключ (с отделкой) Под усадку (без отделки)
Фундамент Свайно-винтовой или ж/б сваи (рассчитываются отдельно).
Гидроизоляция фундамента Рубероид в два слоя.
Основание (обвязка) Из обрезного бруса (100х150 мм. 150х150 мм. 150х200 мм. согласно выбранному сечению бруса). Обработка антисептиком.
Количество рядов основания 2 2
Цокольное перекрытие Обрезной брус камерной сушки 100х150/50х200 мм. с шагом 600 мм. Обработка антисептиком. Обрезной брус естественной влажности 100х150/50х200 мм. с шагом 600 мм. Обработка антисептиком.
Пол черновой Обрезная доска камерной сушки 20х100 мм. Обрезная доска естественной влажности 20х100 мм.
Внешние стены Профилированный брус камерной сушки, сечением 90х140/140х140/190х140 мм. по выбранной комплектации. Два вида профиля: 
1. С двух сторон, прямой со снятой фаской. 2. Снаружи под «блок- хаус», внутри прямой.
Высота сруба: Сруб одноэтажный- 18 венцов
Сруб с мансардой- 18 венцов
Сруб в 1,5 этажа- 18 венцов, далее каркас с внешней отделкой имитацией бруса.
Сруб в 2 этажа- 37 венцов
Профилированный брус естественной влажности, сечением 90х140/140х140/190х140 мм. по выбранной комплектации. Два вида профиля: 
1. С двух сторон, прямой со снятой фаской. 2. Снаружи под «блок- хаус», внутри прямой.
Высота сруба: Сруб одноэтажный- 18 венцов
Сруб с мансардой- 18 венцов
Сруб в 1,5 этажа- 18 венцов, далее каркас с внешней отделкой имитацией бруса.
Сруб в 2 этажа- 37 венцов
Межвенцовый утеплитель Джут (льноджутовое полотно). Джут (льноджутовое полотно).
Перегородки 1-го этажа Профилированный брус камерной сушки, сечением 90х140 мм. Профилированный брус естественной влажности, сечением 90х140 мм.
Перегородки 2-го этажа Каркасные: доска камерной сушки 40х100 мм, обшитые евровагонкой хвойных пород, камерной сушки, толщиной 12,5 мм. сорт «АВ» (дома с мансардой и в 1,5 этажа). Брусовые: профилированный брус камерной сушки, сечением 90х140 мм. (дома двухэтажные). Каркасные: доска естественной влажности 40х100 мм. (дома с мансардой и в 1,5 этажа). Брусовые: профилированный брус естественной влажности, сечением 90х140 мм. (дома двухэтажные).
Сборка сруба Берёзовый нагель. Берёзовый нагель.
Соединение углов сруба «Тёплый угол» (коренной шип). «Тёплый угол» (коренной шип).
Высота от пола до потолка Сруб одноэтажный: 2,4 м. (18 венцов) Сруб с мансардой: 1-ый этаж- 2,4 м. (18 венцов)
2-ой этаж (мансарда)- 2,3 м.
Сруб в полтора и два этажа:
1-ый этаж 2,4 м ±4 см. (18 венцов)
2-ой этаж 2,4 м ±4 см. каркасные аттиковые стены (боковые) высотой 1,5 м. в полутораэтажном доме
2,4 м ±4 см (поднят брусом на 18 венцов) в двухэтажном доме.
Сруб одноэтажный: 2,5 м. (18 венцов) Сруб с мансардой: 1-ый этаж- 2,5 м. (18 венцов)
2-ой этаж (мансарда)- 2,4 м.
Сруб в полтора и два этажа:
1-ый этаж 2,5 м ±4 см. (18 венцов)
2-ой этаж 2,5 м ±4 см. каркасные аттиковые стены (боковые) высотой 1,5 м. в полутораэтажном доме
2,5 м ±4 см (поднят брусом на 18 венцов) в двухэтажном доме.
Утепление (пол, потолок, мансарда) Минеральная вата Knauf 150 мм. Отсутствует.
Пароизоляция (пол, потолок, мансарда) Ондутис R70. Отсутствует.
Пол чистовой Шпунтованная доска камерной сушки толщиной 36 мм. сорт АВ. по рейке 20х40 мм. либо шпунтованная ДСП 16 мм. по разряженной обрешётке из обрезной доски камерной сушки 20х100 мм. Отсутствует.
Потолки Евровагонка камерной сушки толщиной 12,5 мм. сорт АВ. Отсутствует.
Окна Деревянные, двойного остекления. Отсутствуют.
Двери Входная- металлическая, утеплённая (Россия). Межкомнатные- филёнчатые. Отсутствуют.
Наличники на окна и двери Наличник деревянный, строганый, камерной сушки 70-90 мм. Отсутствует.
Шиповка оконных и дверных проёмов (ройки) Да. Отсутствует.
Лестница (при наличии второго этажа) Деревянная, одно или двухмаршевая. Перила- заводские резные, балясины- заводские точеные, устанавливаются стартовые точёные столбы. Ступени 40х200 мм. Тетива лестницы- 90х140 мм. Отсутствует.
Крыша Двускатная, ломаная или вальмовая в соответствии с проектом. Двускатная, ломаная или вальмовая в соответствии с проектом.
Стропильная система Выполнена из обрезной доски камерной сушки 40х150 мм. Шаг установки стропильных ног 600 мм. Выполнена из обрезной доски естественной влажности 40х150 мм. Шаг установки стропильных ног 600 мм.
Обрешётка Выполняется из обрезной доски камерной сушки толщиной 20-22 мм. Шаг крепления обрешетки 300 мм. Контробрешётка выполняется из бруска камерной сушки 40х50 мм. Крепится по стропильным ногам (вентиляционный зазор). Выполняется из обрезной доски естественной влажности толщиной 20-22 мм. Шаг крепления обрешетки 300 мм. Контробрешётка выполняется из бруска естественной влажности 40х50 мм. Крепится по стропильным ногам (вентиляционный зазор).
Подкровельная мембрана Ондутис А100 Ондутис А100
Кровельное покрытие (на выбор) Ондулин, Черепица Ондулин. Ондулин, Черепица Ондулин.
Фронтоны (при наличии) Каркас из обрезной доски камерной сушки 40х150 мм. Обшиваются вагонкой камерной сушки толщиной 16 мм. сорт АВ по контррейке 20х40 мм. (вентиляционный зазор). Влаго-ветрозащита Ондутис А100. Монтаж вентиляционных решёток. Каркас из обрезной доски естественной влажности 40х150 мм. Обшиваются вагонкой камерной сушки толщиной 16 мм. сорт АВ по контррейке 20х40 мм. (вентиляционный зазор). Влаго-ветрозащита Ондутис А100. Монтаж вентиляционных решёток.
Свесы крыши Ширина 400 мм. Подшиваются вагонкой камерной сушки, сорт АВ. Ширина 400 мм. Подшиваются вагонкой камерной сушки, сорт АВ.
Терраса/балкон (при наличии) Устанавливаются опорные столбы из строганного бруса камерной сушки 140х140 мм. с компенсационными болтами под усадку. Устанавливаются опорные столбы из строганного бруса естественной влажности 140х140 мм. с компенсационными болтами под усадку.
Отделка потолка террасы/балкона Евровагонка камерной сушки толщиной 12,5 мм. сорт АВ. Отсутствует.
Пол террасы/балкона Шпунтованная доска камерной сушки толщиной 36 мм. сорт АВ. Отсутствует.
Ограждение террасы/балкона Перила- строганая доска. Балясины- точеные, фигурные. Либо ограждение в скандинавском стиле. Устанавливаются ступени у входа. Отсутствует.
Допуск на геометрические параметры сруба Составляет +/- 50 мм по длине с каждой стороны. Составляет +/- 50 мм по длине с каждой стороны.
Допускается стыковка бруса, вагонки и половой доски По всему периметру стен дома (если ширина и длина дома более 6,0 метров). Вагонки и доски пола в каждой отдельной комнате. По всему периметру стен дома (если ширина и длина дома более 6,0 метров).
Допуски по брусу, доске +/- 5 мм. +/- 5 мм.
В стоимость включена Доставка комплекта материала в радиусе 500 км. от г. Пестова Новгородской области и сборка дома на вашем участке. Доставка комплекта материала в радиусе 500 км. от г. Пестова Новгородской области и сборка дома на вашем участке.
Гарантия 5 лет. 2 года.
Бытовка строительная 2,0х3,0 м. каркасно-щитовая. Стоимость 23000 руб. Остаётся на участке Заказчика. Стоимость 23000 руб. Остаётся на участке Заказчика.
Туалет 1,0х1,0 м. каркасно-щитовой. Стоимость 12000 руб. Остаётся на участке Заказчика. Стоимость 12000 руб. Остаётся на участке Заказчика.
Генератор Стоимость аренды на весь срок строительства 10000 руб. ГСМ за счёт Заказчика. Стоимость аренды на весь срок строительства 10000 руб. ГСМ за счёт Заказчика.

Сооружение дома производится в нескольких видах: под усадку, когда дом будет отстаиваться определенное время и сразу под ключ.

Зимой мастера рекомендуют строить дома из зимнего леса, в летний период - из бруса камерной сушки.

Оптимальными для сада или дачи считают малобюджетные домики на винтовых сваях, у нас имеются одноэтажные и полуторатажные варианты домов.

Для постоянного проживания, советуем теплые двухэтажные и одноэтажные коттеджи и дома на плитном и ленточном фундаменте.

Мы можем предложить несколько видов профбруса: 190х140 мм и 140х140 мм. Постройки из вертикального бруса строим с использованием бруса 140х190 мм.

Дополнительные услуги


Проект двухэтажного дачного дома 112 сочетает в себе европейские архитектурные элементы и мотивы русского деревянного зодчества. В дизайне дома применены оригинальные решения: геометрия линий, цветовой контраст между кровлей и деревянными элементами.

Преимущество двускатной крыши из ондулина выбранной расцветки (коричневой, зеленой или красной) заключается в совмещении практической целесообразности и эстетической привлекательности.

Общая площадь дома с балконом и маленькой террасой составляет 150 кв.м., размеры дома – 9х9 м..

Качественная обработка древесных материалов исключает усадку и деформацию конструкции строения. Двойные окна обеспечивают комфортное круглогодичное проживание в доме.

Планировка дачного дома выполнена с максимальным задействованием внутреннего пространства. Равномерное освещение комнат обусловлено продуманным расположением окон. Использованный в строительстве экологически чистый, натуральный материал – профилированный брус – придает дому респектабельный вид.

Компания «Дача из бруса» предлагает готовые проекты и строительство домов из бруса под ключ в Великом Новгороде. По желанию заказчика возможна разработка индивидуального проекта.


Популярные проекты

хит продаж брус камерной сушки
Тип: с балконом, с маленькой террасой
Общая площадь: 662
1417600
от 1350100
хит продаж брус камерной сушки
Тип: с террасой
Общая площадь: 582
1281100
от 1220100
хит продаж брус камерной сушки
Тип:
Общая площадь: 1142
1743100
от 1660100

Заказать или задать вопрос



Заказать или задать вопрос

Заказать звонок